Roncello - Rustico in Vendita con Ottimo Potenziale di Redditività
Monza e della Brianza - RoncelloCaratteristiche
Descrizione
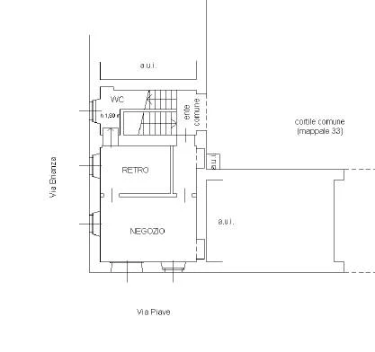
In posizione centrale a Roncello, proponiamo in vendita un rustico da ristrutturare, composto da quattro unità abitative. È già stato redatto e presentato uno studio di fattibilità all'ufficio tecnico del Comune, con parere preventivo favorevole. Il progetto prevede la realizzazione di quattro monolocali indipendenti, ideali per una rendita ottimale.
Questa operazione rappresenta un'ottima opportunità per investitori e piccole imprese, grazie al grande potenziale di redditività. Il rustico ha una superficie complessiva di 140 mq di locali da ristrutturare, oltre a due cantine.
Progetto e render sono disponibili presso il nostro ufficio per consultazioni dettagliate.
Non lasciarti sfuggire questa opportunità! Contattaci per maggiori informazioni e per visionare il progetto.
Mappa
Dettagli unità immobiliare
- Superficie
- 140 m²
- Superficie commerciale
- 140 m²
- Superficie
- 4 m²
Altri immobili che potrebbero interessarti
Dicono di noi
Grazie a Unicacasa, ma soprattutto Giorgio Petroli che ci ha accompagnato fino al fine dell'acquisto con grande professionalità, serietà e disponibilità ! Raccomandiamo vivamente Unicacasa !!
Finalmente ho rogitato l'acquisto del mio appartamento , con agente immobiliare molto seri, professionali, precisi e discreti. Questo vale anche per la proprietaria vendidrice. Vi consiglio questa agenzia.
Due parole descrivono il nostro percorso con L'agenzia Unica Casa : onestà e disponibilità. Siamo stati accolti da Giorgio con un sorriso che ci ha accompagnato fino alla fine della pratica, anche in movimenti partcolarmente tristi come un lockdown e problemi personali. Consigliamo a tutti di rivolgersi a personale competente, come quello di questa agenzia, che con spiegazioni chiare ha saputo guidarci nell'acquisto della nostra prima casa.
Unica Casa ci ha accompagnato con professionalità e trasparenza, fin dall'inizio, offrendo tante soluzioni alle nostre necessità. Si sono preoccupati di proporre quello che stavamo cercando e non quello che avevamo "a portafoglio", successivamente si sono occupati di tutta la parte progettuale di ristrutturazione, dell'organizzazione e della risoluzione delle pratiche burocratiche e dei vari atti necessari, con grande professionalità e precisione. In poche parole abbiamo cambiato casa in totale relax!
La mia situazione è stata di venditrice di immobile Mi ha fatto davvero piacere la chiarezza nello spiegare le modalità di valutazione delle situazioni di mercato in atto al momento, ma anche l’efficenza nella parte operativa quando si è trattato di raccogliere la documentazione necessaria, mostrare l’immobile agli interessati e poi passare a confrontare le offerte giunte. L’efficienza è rimasta sempre presente anche nel percorso successivo per arrivare alla firma prima del preliminare e poi dell’atto notarile, accompagnata da capacità di ascolto e di gentilezza, qualità mai sgradite!
Siamo stati seguiti da Massimo Vismara è stato molto più di un agente immobiliare: con la sua gentilezza, pazienza e disponibilità ci ha accompagnati passo dopo passo, aiutandoci a superare imprevisti e ostacoli senza mai farci perdere la serenità. Grazie a lui siamo arrivati al rogito con il sorriso e tanta emozione… e ora non vediamo l’ora di avere le chiavi in mano e iniziare questa nuova avventura! Consigliamo vivamente a chi cerca una guida affidabile e umana in un passaggio così importante.








































